لورين >
Gite Ideal Pour Cure Thermale, Proche Port De Plaisance, Terrasse Et Grand Terrain. - Fr-1-589-69 Fontenoy-le-Château
Gite Ideal Pour Cure Thermale, Proche Port De Plaisance, Terrasse Et Grand Terrain. - Fr-1-589-69
معرض الصور
Preview only — see all hotel photos
See all 35 photos 1 /
35
Best options for your travel dates
عرض الفندق على الخريطة
Gite Ideal Pour Cure Thermale, Proche Port De Plaisance, Terrasse Et Grand Terrain. - Fr-1-589-69
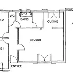
تقع Gite Ideal Pour Cure Thermale، Proche Port De Plaisance، Terrasse Et Grand Terrain. - Fr-1-589-69 Fontenoy-le-Château المكونة من 1 غرفة نوم على بعد 1.3 كم من Eglise Saint-Mansuy de Fontenoy-le-Chateau، وتجذب الضيوف لاستكشاف مناطق الجذب السياحي المختلفة في المنطقة.
تقع الفيلا المكونة من 1 حمام أيضًا على مسافة قريبة من Musée de la Broderie. يقع بيت العطلات على بُعد 10 دقيقة تقريبًا بالسيارة من La Manufacture Royale.
المطبخ المجهز بالكامل مع المجمدة وأدوات المطبخ متاحة في مكان الإقامة في Fontenoy-le-Château.
المزيد +
أقل -
رجاء الانتظار، نحن نتحقق لك من الغرف المتوفرة
البحث عن الفنادق
المرافق
المميزات الرئيسية
- واي فاي
- الحيوانات الأليفة
مرافق الفندق
المعلومات العامة:
- ممنوع التدخين في كل الأماكن
- واي فاي
- مسموح بدخول الحيوانات الأليفة
الطعام:
- أدوات المطبخ
مرافق الغرفة:
- طاولة الطعام
- غسالة الملابس
السياسات
تسجيل الوصول: من 16:00 حتى 17:30
تسجيل المغادرة: من 09:00 حتى 10:00
خريطة
المعالم السياحية المحلية
المعالم السياحية
- Chapelle Notre-Dame du Bois-Banny (3344 كم)
- Monument aux Morts (4600 كم)